固定吊力矩限制器

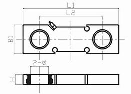
固定吊力矩限制器安装示意图
一、 固定吊力矩限制器概述:
固定吊在工作时,需根据现场实际情况而经常改变工况进行起重作业,如改变起吊角(幅度)、起吊臂长等,而在不同工况参数下所能起吊的最大额定起重量及工作最大、最小变幅是相应不同的,因此需要一套装置对以上参数综合监测判断,作出起重机正常工作、满载、超载、变幅超上限、变幅超下限等工作状态的指示并相应报警、提示、控制,以保证起重机械的正常工作。
力矩限制器就是应上述要求,应用于起重机械的安全保护装置。我公司在总结国内外力矩限制器经验的基础上,应用新技术,新器件,研制生产了WTL系力矩限制器产品。力矩限制器主要组成部分有显示仪表(含处理器),信
号盒、角度仪或者角度测长仪(主要为臂杆可变化的汽车吊)、重量限制器、风速传感器、风向传感器等。
二、 固定吊力矩限制器配置
|
配置 |
数量 |
型号 |
说明 |
|
主机仪表 |
1 |
WTL-A(200)(推荐) |
显示重量、幅度、角度、额重、载荷率等。有原始参数备份和恢复功能 |
|
角度仪 |
1 |
JD-180 |
采用防水型导电塑料电位器 |
|
|
1或2 |
三滑轮传感器(SHL) |
有主副钩的装两个重量传感器,无副钩的装一个重量传感器 |
|
板环拉式传感器(BH-2) |
|||
|
旁压传感器(PY) |
|||
|
轴销式传感器(ZX) |
|||
|
柱式传感器(JZ) |
三、固定吊力矩限制器配置说明
(一)力矩限制器主机仪表
固定吊力矩限制器
信号监测:两路重量信号及一路角度信号监测
屏幕显示:蓝色或灰白色液晶屏显示
信号输出:输出继电器信号或RS485信号及4-20mA
供电方式:交流220V、380V、直流24V
安装方式:壁挂式
WTL-A(200)型力矩限制器仪表 WTL-A200型力矩限制器装在广东中艺珠海海重钢管厂固定吊
固定吊力矩限制器其它可选仪表型号:WTL-A300、WTL-A400、WTL-A500、WTL-A600

WTL-A300力矩限制器仪表 WTL-A400力矩限制器仪表 WTL-A500力矩限制器仪表 WTL-A600力矩限制器仪表
(二)角度仪
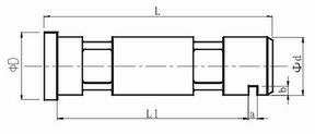
固定吊力矩限制器可用角度仪型号:JD-180型、JD-C90型
固定吊力矩限制器推荐角度仪型号:JD-180型
安装位置:固定吊臂杆根部
安装说明:角度仪水平线与臂杆平行

JD-180型角度仪的外形尺寸图
JD-180型角度仪 JD-180角度仪安装在广东中艺珠海海重钢管厂固定吊上
(三)重量传感器
a、PY型旁压传感器
安装位置:钢丝绳固定端
取力方式:钢丝绳张力
安装要求:固定吊起重绳必须有固定端

PY型旁压传感器的外形尺寸图

PY型旁压传感器 PY型旁压传感器安装方式
b、BH-2型板环拉式传感器
安装位置:安装在起重绳的固定绳(定绳)与臂杆连接处。
取力方式:测量起重绳的拉力。
注意事项:①起重绳必须有固定绳(定绳)
②固定绳与臂杆连接处无定滑轮
量程选择:最大额定起重量÷钢丝绳倍率=传感器量程


BH-2型板环拉式传感器的外形尺寸图

BH-2型板环拉式传感器 BH板环拉式传感器安装在715吨固定吊上
c、SHL型三滑轮传感器
安装方式:安装于固定吊起重绳上,可焊接在臂杆上(配弯板);也可随起重绳位置变化而变化(配万向结)。
取力方式:测量起重绳的张力。
量程选择:请告知我公司单根钢丝绳最大受力,我公司技术人员会为您计算出相应的传感器量程。

SHL型三滑轮传感器 SHL型三滑轮传感器安装实例
d、ZX型轴销式传感器
安装位置:安装在起重绳导向轮中
安装方式:替换原受力点的轴销
取力方式:测量受力点的压力
注意事项:①非标准传感器需要定做
②受力点与传感器的剪切力应该始终保持一致,以保证传感器的输出线性
③如果选用轴销传感器的话,可以按原来的滑轮轴销尺寸定做轴销传感器.将其更换即可。需要提供轴销的详细尺寸、挡板
的安装位置、钢丝绳的倍率、载荷曲线表等参数
量程选择:当前受力点的最大受力


ZX型轴销式传感器尺寸图 ZX型轴销式传感器尺寸表 ZX型轴销式传感器小量程尺寸图

ZX型轴销式传感器 ZX轴销传感器安装在广东中艺珠海海重钢管厂100t固定吊上
e、JZ-2型柱式传感器
安装位置:安装在导向滑轮下
安装方法:利用压板或者类似于撬板的机械件压住传感器,使传感器受力
取力方式:通过感应机械件的的受力,从而反映出钢丝绳的受力
注意事项:①械件与柱式传感器的接触面应完全接触,
②柱式传感器受力最佳点为垂直于受力面,所以机械件尽量使传感器为垂直受力
量程选择:受力点的最大受力

JZ-2型柱式传感器的外形尺寸图

JZ-2型柱式传感器 JZ柱式传感器安装在揭阳南泰起重25t固定吊上
四、力矩限制器控制原理
我公司力矩限制器常规控制有3个:幅度上限控制,幅度下限控制,超载控制,分别介绍如下:
1.幅度上限控制:当臂杆运行到最小幅度(最大角度)时,仪表发出声光报警,幅度上限继电器动作,切断减幅回路,使臂杆停止减幅,但可以往安全方向(增幅)运动
2.幅度下限控制:当臂杆运行到最大幅度(最小角度)时,仪表发出声光报警,幅度上限继电器动作,切断增幅贿赂,使臂杆停止增幅,但可以往安全方向(减幅)运动
3.超载控制:当实际起重量达到额定起重量的95%时,仪表发出满载声光报警,但不控制,当实际起重量达到额定重量的105%时,仪表发出超载声光报警,超载继电器动作,切断钓上升回路及臂杆增幅回路,使吊车能够往安全方向运动(减副或者落钩)
五、力矩限制器订货注意事项
1、具体型号(WTL-A100,数码管;WTL-A200,黑白屏or蓝屏;WTL-A300,彩屏机,具体见产品选型手册)
2、几路重量(是否是主副钩,或者是抓斗/吊钩两种状态)
3、角度仪线长;
4、载荷曲线表,臂长、倍率、中心距;
5、传感器是型号,尺寸,线缆长度;
6、重量传感器(拉式传感器)是否需要配套护板;
7、钢丝绳直径;
8、输出控制:常规控制:上限、下限、超载;若有其它特殊要求,需特别备注;
9、电源类型(24V、220V 、380V)
六、其他
固定吊还可选配风速仪。风速仪安装在固定吊迎风处。

广东中艺重工固定吊安装实例